Bildergalerie überspringen
Abbildung kann abweichen
Walther-Werke Anschlussschrank WA0065
Hersteller Nummer:
WA0065
EAN Nummer:
4015609588756
Hersteller:
WALTHER-WERKE Ferdinand Walther GmbH
Unsere Artikelnummer:
1335393
Lieferzeit:
ca. 10 - 14 Tage
Unsere Artikelnummer:
1335393
Walther-Werke Anschlussschrank WA0065
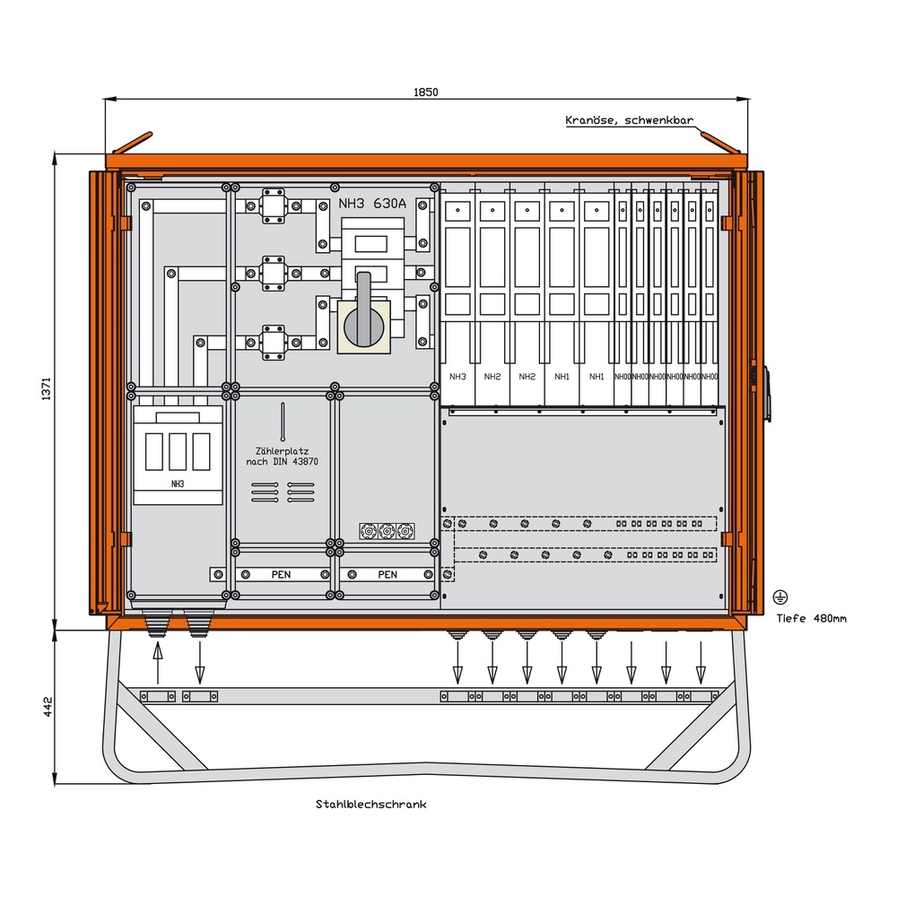
Walther-Werke Anschlussschrank WA0065 Anschlussschrank 346 kVA mit Wandlermessung, 12 NH-Abängen Anschlussschrank, Anschlussleistung: 346kVA nach IEC EN 60439-4 A1+A2 (DIN VDE 0660 T501 A1+A2) und DIN VDE 43868 1-4, Gehäuse (G185) aus elektrolytisch-verzinktem Stahlblech, mit schwermetallfreier Kunststoff-Lackierung, Farbe: RAL 2004 -reinorange-, mit Kranösen, mit Doppeltür und 3-Punkt Stangenschloss, mit Drehknauf und Vorrichtung für Vorhangschloss, inkl. feuerverzinktem Untergestell mit Ösen für Erdnägel, Einbauten schutzisoliert, Schutzart : IP 44, Messeinrichtung Schutzart : IP 54, Größe ca.: 1340x1900x480 mm H-B-T + Untergestell-Höhe ca.: 460 mm, Bestückung: 1 NH 3-Sicherungslasttrennschalter 630 A mit Bolzenanschluss M10, 1 Spannungspfadsicherung 3pol. 6 A (E27), 1 DS-Zählerplatz ohne Zähler nach DIN 43870 2, 1 Wandleraufnahmevorrichtung mit CU-Schienen und ISO-Stützern vorverdrahtet für Einzelwandler, 1 NH 3-Lasttrennschalter mit Sicherungen 500 A als Hauptsicherung, 1 NH 3- Sicherungslastschaltleiste 500 A mit Bolzenanschluss M 10, 2 NH 2-Sicherungslastschaltleisten 400 A mit je 1 Bolzenanschluss M10, 2 NH 1-Sicherungslastschaltleisten 250 A mit je 1 Bolzenanschluss M10, 6 NH00- Sicherungslastschaltleisten 100 A mit je 1 Prismenklemme 16-70mm² EAN Nr. 4015609588756 Warengruppe Walther-Werke Anschlussschrank

Hersteller "WALTHER-WERKE Ferdinand Walther GmbH"
Elektroinstallationen sicher und effizient gestalten - WALTHER-WERKE Ferdinand Walther GmbH bietet innovative Produkte und Lösungen. Kabelverschraubungen, Kabeldurchführungen und Leitungsschutzsysteme von WALTHER-WERKE erfüllen höchste Anforderungen an Qualität und Zuverlässigkeit. Die Produkte sind bekannt für ihre robuste Bauweise und einfache Handhabung. Durch ihre flexible Gestaltung und hohe Funktionalität bieten sie eine optimale Lösung für verschiedene Elektroinstallationsanforderungen. Die Lösungen ermöglichen eine effiziente und sichere Verlegung von Kabeln und Leitungen.
Broschüren Walther-Werke Anschlussschrank WA0065
Sicherheitshinweis
Um Stromschläge, Kurzschlüsse oder andere Gefahren zu vermeiden, sollte die Installation und Montage elektronischer Geräte ausschließlich von einem qualifizierten Fachmann vorgenommen werden.
WALTHER-WERKE Ferdinand Walther GmbH
WALTHER-WERKE Ferdinand Walther GmbH
Ramsener Str. 6
67304 Eisenberg
Deutschland